وقتی بزگترین نام ، به دبال بالاترین کیفیت ست ...

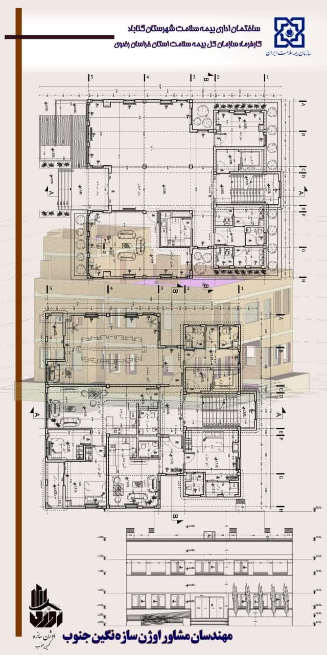
پروژه گناباد

مطالعات و طراحی وتهیه نقشه های فاز1و2 بلوک اداری در شهر گناباد

مدت زمان همکاری

4ماه

کارفرما

اداره کل بیمه سلامت خراسان رضوی

سایر پروژه ها

مصاحبه با مهندس تورج اتحادیه درباره فعالیت های مهندس عطاءالله اتحادیه اولین رییس شورای مدیریت جامعه مهندسان مشاور ایران

وقتی بهترین ها گرد هم می آیند… مصاحبه با مهندس تورج اتحادیه درباره فعالیت های مهندس عطاءالله اتحادیه اولین رییس شورای مدیریت جامعه مهندسان مشاور

مشاهده پروژه

شرکت مهندسان مشاور اوژن سازه نگین جنوب با تکیه بر دانش فنی روز و تجربه ای گرانبها با رتبه انواع ساختمان ها (اداری/مسکونی /اموزشی /درمانی /فرهنگی /تجاری …)و تاسیسات اب و فاضلاب با بهره گیری از متخصصین مجرب و متعهد تلاش میکند تا با ارایه خدمات مهندسی با کیفیت گامی موثر در توسعه و ابادانی کشور بردارد

وقتی بزگترین نام ، به دبال بالاترین کیفیت ست … شرکت مهندسان مشاور اوژن سازه نگین جنوب با تکیه بر دانش فنی روز و تجربه

مشاهده پروژه

سالگرد تاسیس شرکت

وقتی بهترین ها گرد هم می آیند… جشن سالگرد شرکت اوژن سازه امروز مفتخریم سالگرد تاسیس شرکت خود را جشن میگیریم . در طول این

مشاهده پروژه